NEWSお知らせ

横尾町2丁目に、アウトドア好き必見の分譲住宅完成!




ビルトインガレージ付きのスタイリッシュな外観。
ガレージ1台に加え、敷地内にさらに2台駐車可能!
合計3台のゆとりあるカースペースで、愛車やキャンプ道具もラクラク収納。

1階にはトイレ・浴室・洗面に加え、自由に使える洋室を完備。
在宅ワークや趣味部屋、アウトドアグッズの整理スペースとしても◎。

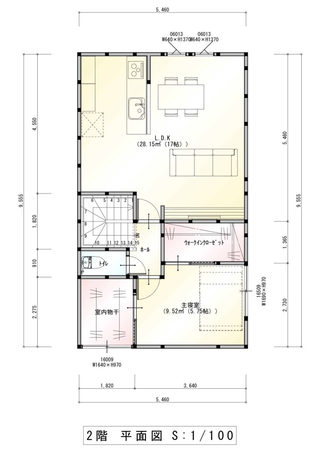
2階にはプライバシーを守りつつ開放感たっぷりのリビング・キッチン。
窓からの光が心地よく差し込み、外の景色を楽しみながらゆったりくつろげます。

ガレージから室内へのスムーズな動線で、キャンプ帰りやアウトドア後も快適!

「車も趣味も思いっきり楽しみたい」若い世代にぴったりの一邸です。
休日は仲間を呼んでBBQやアウトドアグッズに囲まれた生活を楽しもう。

【お問い合わせはこちら】

お問い合わせ・ご相談


📸 公式Instagramはこちら

CONTACT USお問い合わせ・資料請求

お問い合わせ・資料請求の
フォームはコチラからご連絡